Scan2CAD
Scan2CAD is a specialized conversion software designed to transform raster images (like scanned paper drawings) and PDFs into editable CAD
Scan2CAD is a specialized conversion software designed to transform raster images (like scanned paper drawings) and PDFs into editable CAD
DP, the leader in CAD file conversion, is dedicated to helping you transform your images and scans into vectorized CAD
CAD Sourcing is not just about providing CAD services or drafting services, it’s about finding the best vendors in the
There are literally thousands of CAD modeling companies around the world (see partial list below). Each of these companies is
There are literally thousands of CAD drafting companies around the world (see partial list below). Each of these companies is
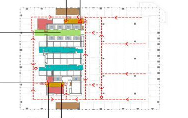
Facade shop drawings define the structure and shape of a building’s façades. Facade shop drawings are used by project managers

CAD file formats are important because not all formats are interchangeable. You can view some CAD files only in specific
Design Presentation provides high quality TurboCAD Conversion conversion services to the design and construction industry. We can convert TurboCAD files
TurboCAD is a CAD software application for 2D and 3D design and drafting. It contain general drafting tools, as well
Design Presentation is a US-based leading provider of Architectural CAD Support services to Fortune 500 companies, government entities and thousands

In an evolving architectural landscape, the ability to scale resources without compromising design integrity is the hallmark of a high-performance
Design Presentation offers CAD design and drafting services (both 2D and 3D) to a wide variety of industries (including aerospace,